Objekt 18 von 18
Vorheriges Objekt
Zurück zur Übersicht
Zurück zur Übersicht
Vorheriges Objekt
Zurück zur ÜbersichtBad Griesbach im Rottal: ***TOP gepflegtes und hochwertig ausgestattetes EFH bzw. Ferienhaus in ruhiger Wohnlage mit Carport, 2 Garagen und einem schön bepflanzten Garten***
Objekt-Nr.: M-BG0836K
Schnellkontakt
Optionen
Optionen
Basisinformationen
Adresse:
94086 Bad Griesbach im Rottal
Passau
Bayern
Passau
Bayern
Preis:
430.000 €
Wohnfläche ca.:
115 m²
Grundstück ca.:
785 m²
Zimmeranzahl:
3
Weitere Informationen
Weitere Informationen
Haustyp:
Einfamilienhaus
Etagenanzahl:
2
Provisionspflichtig:
ja
Provision:
Die Maklercourtage beträgt 2,38% inkl. MwSt.
Küche:
offen
Bad:
Dusche, Fenster
Anzahl Schlafzimmer:
2
Anzahl Badezimmer:
2
Balkon:
1
Terrasse:
1
Gäste-WC:
ja
Garten:
ja
Dachboden:
ja
Kamin:
ja
Keller:
voll unterkellert
Als Ferienhaus geeignet:
ja
Anzahl der Parkflächen:
1 x Carport; 2 x Garage
Möbliert:
Teilmöbliert
Ausblick:
Berge
Baujahr:
1950
Verfügbar ab:
nach Vereinbarung
Bodenbelag:
Fliesen, Laminat
Zustand:
gepflegt
Heizung:
Zentralheizung
Befeuerungsart:
Gas, Holz
Energieausweistyp:
Verbrauchsausweis - gültig vom 03.03.2026 bis 02.03.2036
Energieeffizienz-Klasse:
F
Energieverbrauchs-Kennwert:
178 kWh/(m²*a)
Energieverb. Warmwasser enthalten:
ja
Baujahr laut Energieausweis:
2015
Beschreibung
Beschreibung
Objektbeschreibung:
SIE SUCHEN:
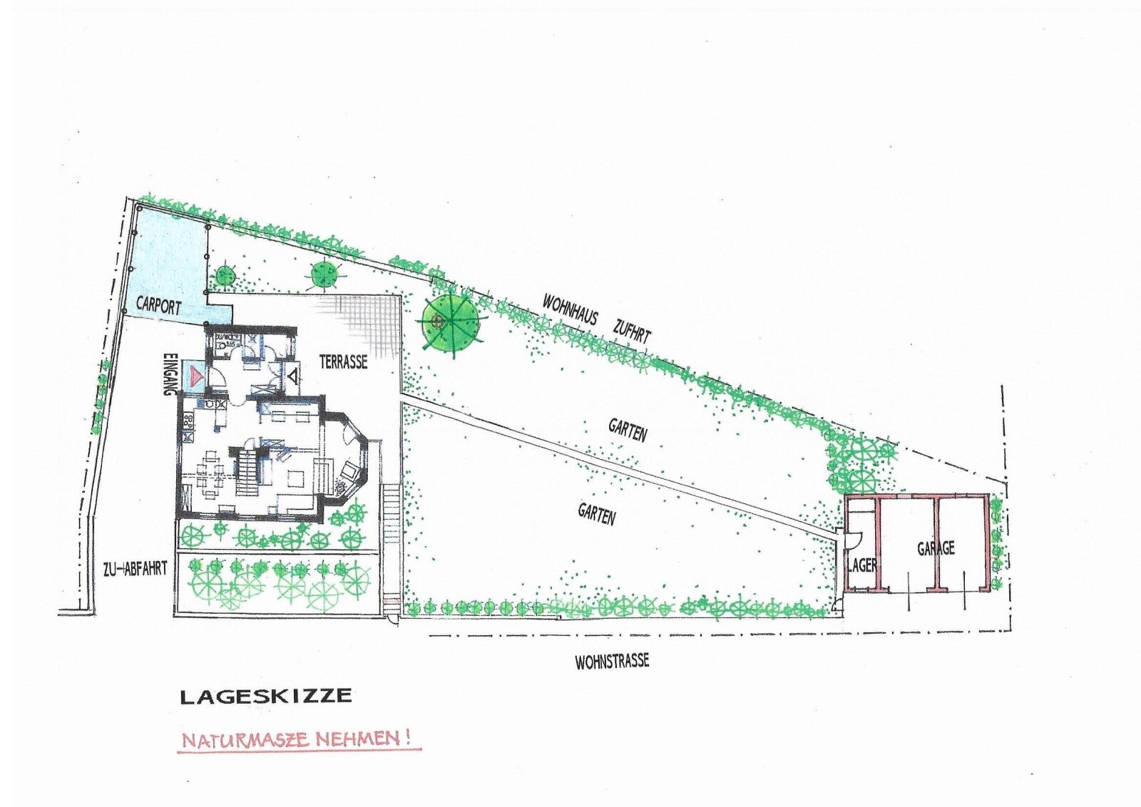
Ein gepflegtes und gut ausgestattetes von einem Architekten umgeplantes Einfamilienhaus mit offener Raumgestaltung und Glasdach-Carport sowie 2 Garagen und Gartengeräteraum. Die großzügig angelegte Terrasse mit Blick ins Grüne und in den liebevoll bepflanzten, eingewachsenen Garten ist zu jeder Jahreszeit eine Augenweide.
OBJEKTBESCHREIBUNG:
FÜHRUNG VOR UND DURCH DAS HAUS
Von der verkehrsberuhigten Wohnstraße fahren Sie über eine gepflasterte Auffahrt unter den Carport mit Lagermöglichkeit für Brennholz sowie vor den Eingangsbereich.
ERDGESCHOSS:
Der überdachte Zugangsbereich führt Sie in die Diele mit Zugang zur Gästetoilette mit Dusche und einem praktischen Abstellraum (Speis) mit Fenster. Weiter geht es in den Wohnbereich, hier teilt eine zentral angeordnete Treppe ins Obergeschoß den lichtdurchfluteten Raum in einen Wohn- und Essbereich mit offener Küche.
OBERGESCHOSS:
Im Obergeschoß finden Sie zwei identisch großen Schlafzimmer mit Einbauschränken (eines mit Ausgang auf den großen Balkon mit Fernsicht), in ein großes Bad mit Fenster und bodengleicher, offener Dusche, WC sowie zwei Waschbecken.
KELLERGESCHOSS:
Ein abgeschlossener Treppenabgang führt Sie in den Keller mit Wasch-/Heizraum und in 3 weitere Keller-/Lagerräume mit Fensterbelüftung (teilrenoviert und nicht isoliert).
GARTEN/TERRASSE:
Der liebevoll gestaltete Gartenbereich und die großzügige Terrasse mit Blick über den herrlichen Rosengarten sowie anschließender Grünfläche lädt zum Entspannen und Verweilen ein. Die Rasenpflege übernimmt ein Rasenroboter und der Rosengarten wird über eine Bewässerungsanlage versorgt. Einem gemütlichen Abend bei einem Glas Wein nach einem stressigen Tag steht nunmehr nichts mehr im Wege.
Über den mit Terrassenplatten befestigten Weg gelangen Sie in den Gartengeräteraum und durch ein absperrbares Gartentor in das anschließende Garagengebäude.
Ein gepflegtes und gut ausgestattetes von einem Architekten umgeplantes Einfamilienhaus mit offener Raumgestaltung und Glasdach-Carport sowie 2 Garagen und Gartengeräteraum. Die großzügig angelegte Terrasse mit Blick ins Grüne und in den liebevoll bepflanzten, eingewachsenen Garten ist zu jeder Jahreszeit eine Augenweide.
OBJEKTBESCHREIBUNG:
FÜHRUNG VOR UND DURCH DAS HAUS
Von der verkehrsberuhigten Wohnstraße fahren Sie über eine gepflasterte Auffahrt unter den Carport mit Lagermöglichkeit für Brennholz sowie vor den Eingangsbereich.
ERDGESCHOSS:
Der überdachte Zugangsbereich führt Sie in die Diele mit Zugang zur Gästetoilette mit Dusche und einem praktischen Abstellraum (Speis) mit Fenster. Weiter geht es in den Wohnbereich, hier teilt eine zentral angeordnete Treppe ins Obergeschoß den lichtdurchfluteten Raum in einen Wohn- und Essbereich mit offener Küche.
OBERGESCHOSS:
Im Obergeschoß finden Sie zwei identisch großen Schlafzimmer mit Einbauschränken (eines mit Ausgang auf den großen Balkon mit Fernsicht), in ein großes Bad mit Fenster und bodengleicher, offener Dusche, WC sowie zwei Waschbecken.
KELLERGESCHOSS:
Ein abgeschlossener Treppenabgang führt Sie in den Keller mit Wasch-/Heizraum und in 3 weitere Keller-/Lagerräume mit Fensterbelüftung (teilrenoviert und nicht isoliert).
GARTEN/TERRASSE:
Der liebevoll gestaltete Gartenbereich und die großzügige Terrasse mit Blick über den herrlichen Rosengarten sowie anschließender Grünfläche lädt zum Entspannen und Verweilen ein. Die Rasenpflege übernimmt ein Rasenroboter und der Rosengarten wird über eine Bewässerungsanlage versorgt. Einem gemütlichen Abend bei einem Glas Wein nach einem stressigen Tag steht nunmehr nichts mehr im Wege.
Über den mit Terrassenplatten befestigten Weg gelangen Sie in den Gartengeräteraum und durch ein absperrbares Gartentor in das anschließende Garagengebäude.
Ausstattung:
Das in massiver Bauweise errichtete und unterkellerte Wohlfühlhaus wurde ca. 1950 erbaut.
Ab 2015 wurde das Wohnhaus umfangreich saniert, umgebaut und um die große Terrasse erweitert.
2019 wurde der große Carport in Holzbauweise mit Sicherheitsglas errichtet.
Das Haus ist teilweise mit Kunststofffenster/Terrassentüren sowie Holzfenster/Terrassentür ausgestattet und mit Fensterläden versehen.
Die Kunststoff-Fenster sowie die Gastherme und Heizkörper wurden im Zuge des Umbaus erneuert.
Die Wohn- und Schlafräume wurden mit pflegeleichtem, strapazierfähigen Laminatböden und die Naßräume mit Holzoptik-Fliesenbelägen versehen. Im Wohnbereich ist ein Holzofen mit 8kW Leistung angeschlossen.
Die funktionelle, weiße Küche ist mit E-Herd, Dunstabzug, Spülmaschine und Kühlschrank ausgestattet.
Im Erdgeschoß als auch in einem der beiden Schlafzimmer im Obergeschoß gibt es die Möglichkeit für Internet- und SAT-Anschluss.
RESÜMEE
Alles in Allem, eine gelungene und aufwendige „Verjüngung“ des nun sehr gemütlichen Wohn- bzw. Ferienhauses.
Die jetzigen Bewohner des Objekts wurden hier heimisch, abseits vom Trubel des Alltags und würden sich das auch für Ihre Nachfolger wünschen.
Ab 2015 wurde das Wohnhaus umfangreich saniert, umgebaut und um die große Terrasse erweitert.
2019 wurde der große Carport in Holzbauweise mit Sicherheitsglas errichtet.
Das Haus ist teilweise mit Kunststofffenster/Terrassentüren sowie Holzfenster/Terrassentür ausgestattet und mit Fensterläden versehen.
Die Kunststoff-Fenster sowie die Gastherme und Heizkörper wurden im Zuge des Umbaus erneuert.
Die Wohn- und Schlafräume wurden mit pflegeleichtem, strapazierfähigen Laminatböden und die Naßräume mit Holzoptik-Fliesenbelägen versehen. Im Wohnbereich ist ein Holzofen mit 8kW Leistung angeschlossen.
Die funktionelle, weiße Küche ist mit E-Herd, Dunstabzug, Spülmaschine und Kühlschrank ausgestattet.
Im Erdgeschoß als auch in einem der beiden Schlafzimmer im Obergeschoß gibt es die Möglichkeit für Internet- und SAT-Anschluss.
RESÜMEE
Alles in Allem, eine gelungene und aufwendige „Verjüngung“ des nun sehr gemütlichen Wohn- bzw. Ferienhauses.
Die jetzigen Bewohner des Objekts wurden hier heimisch, abseits vom Trubel des Alltags und würden sich das auch für Ihre Nachfolger wünschen.
Lage:
Bad Griesbach liegt im bekannten niederbayerischen Bäderdreieck, mitten im sanft hügeligen, grünen Rottal.
Eine Wohnsiedlung in ruhiger Hanglage, ca. 15 Gehminuten in das Zentrum von Alt-Griesbach. Der bekannte Kurort mit seinem bunten Hausfassaden rund um den Hauptplatz, kleinen Läden, Cafés und Restaurants bietet eine gewachsene Infrastruktur. Apotheken und Arztpraxen sind fußläufig erreichbar.
Bad Griesbach-Therme ein Kurbad- und Hoteldorf ist ca. 3km entfernt. In der neu renovierten Wohlfühltherme erwartet den Badegast ein individuell abgestimmtes Erholungs-, Wellness- und Fitnessprogramm.
Das naheliegende Europa-Golfzentrum verfügt über sechs 18-Loch, drei 9-Loch, zwei 6-Loch und das Trainingszentrum „Golfodrom“.
Vor Ihrer Haustür erwarten Sie 17 Nordic-Walking-Strecken und 150km Wander- und Thermenwege sowie ein weitläufiges Netz von herrlichen Radwegen.
Verkehrsanbindung:
Verkehrsmäßig ist Bad Grießbach an die neu ausgebaute A94 abgebunden, die in Kürze von München bis Passau durchgehend fertiggestellt wird. Derzeit sind Sie mit dem Auto in ca. 1 3/4 Std. in der Metropole München und über die A3 in ca. 2 Std. am München-Airport.
Die Einkaufstadt Pocking ist ca. 15km, die sehenswerte, historische Dreiflüsse-Stadt Passau ist ca. 22km und die Festspielstadt Salzburg ca. 98km entfernt.
Eine Wohnsiedlung in ruhiger Hanglage, ca. 15 Gehminuten in das Zentrum von Alt-Griesbach. Der bekannte Kurort mit seinem bunten Hausfassaden rund um den Hauptplatz, kleinen Läden, Cafés und Restaurants bietet eine gewachsene Infrastruktur. Apotheken und Arztpraxen sind fußläufig erreichbar.
Bad Griesbach-Therme ein Kurbad- und Hoteldorf ist ca. 3km entfernt. In der neu renovierten Wohlfühltherme erwartet den Badegast ein individuell abgestimmtes Erholungs-, Wellness- und Fitnessprogramm.
Das naheliegende Europa-Golfzentrum verfügt über sechs 18-Loch, drei 9-Loch, zwei 6-Loch und das Trainingszentrum „Golfodrom“.
Vor Ihrer Haustür erwarten Sie 17 Nordic-Walking-Strecken und 150km Wander- und Thermenwege sowie ein weitläufiges Netz von herrlichen Radwegen.
Verkehrsanbindung:
Verkehrsmäßig ist Bad Grießbach an die neu ausgebaute A94 abgebunden, die in Kürze von München bis Passau durchgehend fertiggestellt wird. Derzeit sind Sie mit dem Auto in ca. 1 3/4 Std. in der Metropole München und über die A3 in ca. 2 Std. am München-Airport.
Die Einkaufstadt Pocking ist ca. 15km, die sehenswerte, historische Dreiflüsse-Stadt Passau ist ca. 22km und die Festspielstadt Salzburg ca. 98km entfernt.
Provision:
Alle Angaben sind ohne Gewähr und basieren ausschließlich auf Informationen, die uns vom Auftraggeber zur Verfügung gestellt wurden. Wir übernehmen keine Gewähr für die Vollständigkeit, Richtigkeit und Aktualität dieser Angaben. Bei Ankauf dieses Objektes ist eine Maklercourtage (Käuferprovision) in Höhe von 2,38% des Kaufpreises (inkl.19% MwSt.) bei Vertragsabschluss verdient und fällig. Die Provision ist nach Unterzeichnung des Kaufvertrages umgehend fällig.
Wir freuen uns über Ihr Interesse!
Wir freuen uns über Ihr Interesse!
AGB:
Wir weisen auf unsere Allgemeinen Geschäftsbedingungen hin. Durch weitere Inanspruchnahme unserer Leistungen erklären Sie die Kenntnis und Ihr Einverständnis.
Ihr Ansprechpartner
Zurück zur Übersicht













































