Objekt 1 von 1
Zurück zur Übersicht
Zurück zur Übersicht
Zurück zur ÜbersichtPassau: TOP ANGEBOT 2 Etagen-BÜROFLÄCHE (optional in Wohnraum umzuwidmen) mit TIEFGARAGE und Kellerräumen ZENTRALE INNENSTADT-LAGE
Objekt-Nr.: B-BG0833K
Schnellkontakt
Optionen
Optionen
Basisinformationen
Adresse:
94032 Passau
Bayern
Bayern
Stadtteil:
Sankt Nikola
Vermietbare Fläche ca.:
817 m²
Preis:
1.190.000 €
Objektart:
Wohn/Geschäftshaus
Baujahr:
1980
Weitere Informationen
Weitere Informationen
Provisionspflichtig:
ja
Provision:
Die Maklercourtage beträgt 3,57% inkl. MwSt.
Qualität der Ausstattung:
einfach
Gesamtfläche ca.:
817 m²
Wohnfläche ca.:
540 m²
Anzahl der Parkflächen:
1 x Außenstellplatz; 8 x Tiefgarage
Fahrstuhl:
ja
Keller:
teil unterkellert
Zustand:
unrenoviert
Heizung:
Zentralheizung
Befeuerungsart:
Gas
Energieausweistyp:
Verbrauchsausweis - gültig vom 17.11.2020 bis 16.11.2030
Energieeffizienz-Klasse:
E
Energieverbrauchs-Kennwert:
138 kWh/(m²*a)
Energieverb. Warmwasser enthalten:
ja
Baujahr laut Energieausweis:
1998
Energieklasse:
E
Beschreibung
Beschreibung
Objektbeschreibung:
2 großzügige Etagen in diesem Büro-, Geschäfts- und Wohnhaus stehen aktuell zum Verkauf.
Derzeit gibt es auf das 2.- und 3.OG aufgeteilt
20 Büroräume (11 Büros mit Loggien), einen Aufenthaltsraum mit Teeküche sowie Sozialräume.
Es gibt eine Umbauplanung für 6 Wohneinheiten, die Genehmigung zur Umwidmung der Stadt Passau liegt vor.
Beide Etagen sind neben dem allgemeinen Treppenhaus über eine eigene, interne Treppenanlage verbunden, das Objekt verfügt über einen Personenaufzug.
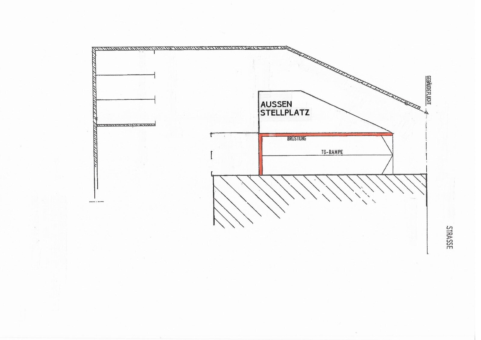
Die Tiefgarage im Untergeschoß unterteilt sich in
8 Stellplätze, ein Stellplatz befindet sich im Außenbereich.
10 abgeschlossene Kellerräume mit einer Nutzfläche von ca.160m² könnten auch vermietet werden.
Bauweise: tragende Wände in Massivbauweise
Fenster: Holz mit Zweifachverglasung
Bodenbeläge: Laminat, Fliesen
Heizung: zentrale Gasheizung
Internet: Glasfaser ca. 100 MBits
Derzeitiger Sanierungsaufwand ist abschätzbar!
ETAGENOBJEKT PASSAU-Stadt
Option 1:
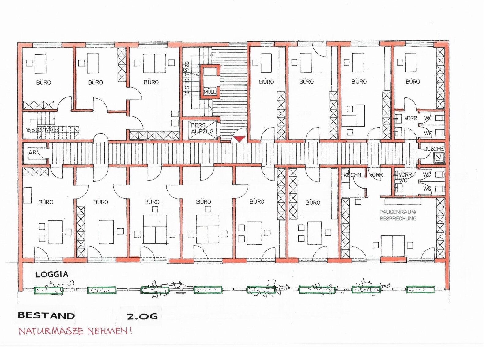
*BESTAND:
2 Bürogeschoße
2.OG
13 Büroeinheiten, davon 6 Büros und ein Aufenthaltsraum mit Süd-Loggia
1 Duschbad
4 WC-Kabinen mit Vorraum
1 Aufenthaltsraum mit Teeküche
1 Abstellraum
1 internes Treppenhaus
3.OG
7 Büros, davon 3 Büros mit Süd-Loggia
1 Waschraum
1 Abstellraum
Gesamt: ca. 540m² Bürofläche
Gesamt: ca. 277m² Nutzfläche
Vermietbare Fläche: ca. 817m²
KG - Teilbereich
10 KELLERRÄUME mit Sicherheitstüren ca. 164m²
TIEFGARAGE: 8 Stellplätze, getrennt mit einem Rolltor, ein Außenstellplatz
ETAGENOBJEKT PASSAU-Stadt
Option 2:
*UMBAUPLANUNG/Entwurf, genehmigte Umwidmung
2 Wohngeschoße
2.OG
WHG.1/ 5 Zimmer-ca.162,5m² mit Süd-Loggia
WHG.2/ 2 Zimmer-ca. 37,3m²
WHG.3/ 2 Zimmer-ca. 56,1m²
WHG.4/ 3 Zimmer-ca. 76,2m² mit Süd-Loggia
WHG.5/ 2 Zimmer-ca. 50,5m² mit Süd-Loggia
3.OG - Teilbereich
WHG.6/ 5 Zimmer-ca.163,0m² mit Süd-Loggia
KG - Teilbereich
10 Kellerräume mit Sicherheitstüren
Tiefgarage mit 8 Stellplätzen, getrennt mit einem Rolltor, 1 Außenstellplatz
*Ein Umbau in Single- bzw. Studentenwohneinheiten ist ebenfalls möglich*
Derzeit gibt es auf das 2.- und 3.OG aufgeteilt
20 Büroräume (11 Büros mit Loggien), einen Aufenthaltsraum mit Teeküche sowie Sozialräume.
Es gibt eine Umbauplanung für 6 Wohneinheiten, die Genehmigung zur Umwidmung der Stadt Passau liegt vor.
Beide Etagen sind neben dem allgemeinen Treppenhaus über eine eigene, interne Treppenanlage verbunden, das Objekt verfügt über einen Personenaufzug.
Die Tiefgarage im Untergeschoß unterteilt sich in
8 Stellplätze, ein Stellplatz befindet sich im Außenbereich.
10 abgeschlossene Kellerräume mit einer Nutzfläche von ca.160m² könnten auch vermietet werden.
Bauweise: tragende Wände in Massivbauweise
Fenster: Holz mit Zweifachverglasung
Bodenbeläge: Laminat, Fliesen
Heizung: zentrale Gasheizung
Internet: Glasfaser ca. 100 MBits
Derzeitiger Sanierungsaufwand ist abschätzbar!
ETAGENOBJEKT PASSAU-Stadt
Option 1:
*BESTAND:
2 Bürogeschoße
2.OG
13 Büroeinheiten, davon 6 Büros und ein Aufenthaltsraum mit Süd-Loggia
1 Duschbad
4 WC-Kabinen mit Vorraum
1 Aufenthaltsraum mit Teeküche
1 Abstellraum
1 internes Treppenhaus
3.OG
7 Büros, davon 3 Büros mit Süd-Loggia
1 Waschraum
1 Abstellraum
Gesamt: ca. 540m² Bürofläche
Gesamt: ca. 277m² Nutzfläche
Vermietbare Fläche: ca. 817m²
KG - Teilbereich
10 KELLERRÄUME mit Sicherheitstüren ca. 164m²
TIEFGARAGE: 8 Stellplätze, getrennt mit einem Rolltor, ein Außenstellplatz
ETAGENOBJEKT PASSAU-Stadt
Option 2:
*UMBAUPLANUNG/Entwurf, genehmigte Umwidmung
2 Wohngeschoße
2.OG
WHG.1/ 5 Zimmer-ca.162,5m² mit Süd-Loggia
WHG.2/ 2 Zimmer-ca. 37,3m²
WHG.3/ 2 Zimmer-ca. 56,1m²
WHG.4/ 3 Zimmer-ca. 76,2m² mit Süd-Loggia
WHG.5/ 2 Zimmer-ca. 50,5m² mit Süd-Loggia
3.OG - Teilbereich
WHG.6/ 5 Zimmer-ca.163,0m² mit Süd-Loggia
KG - Teilbereich
10 Kellerräume mit Sicherheitstüren
Tiefgarage mit 8 Stellplätzen, getrennt mit einem Rolltor, 1 Außenstellplatz
*Ein Umbau in Single- bzw. Studentenwohneinheiten ist ebenfalls möglich*
Lage:
LAGE/ VERKEHRSANBINDUNG/ INFRASTRUKTUR
Die Immobilie befindet sich in zentraler Lage im Stadtteil Sankt Nikola.
Sankt Nicola liegt direkt in der Innenstadt und ist auf Grund der Nähe zum Campus ein gefragtes Wohnviertel insbesonders für Studierende.
Der Stadtteil beherbergt Teile der Universität Passau.
Das Viertel verbindet historische Bausubstanz mit moderner universitärer Nutzung.
Die Bushaltestelle ist in ca. 1 Minute, der Hauptbahnhof ca. in 10 Minuten fußläufig erreichbar. Sie sind in ca. 10 Minuten zu Fuß in der pulsierenden, historischen Altstadt.
Die Autobahnauffahrt auf die A3 ist ca. 10 Fahrminuten entfernt.
Lebensmittel- und Getränkemärkte, Bäckereien, Apotheken, Ärzte, Restaurants und Cafés finden Sie in unmittelbarer Nähe.
Die Immobilie befindet sich in zentraler Lage im Stadtteil Sankt Nikola.
Sankt Nicola liegt direkt in der Innenstadt und ist auf Grund der Nähe zum Campus ein gefragtes Wohnviertel insbesonders für Studierende.
Der Stadtteil beherbergt Teile der Universität Passau.
Das Viertel verbindet historische Bausubstanz mit moderner universitärer Nutzung.
Die Bushaltestelle ist in ca. 1 Minute, der Hauptbahnhof ca. in 10 Minuten fußläufig erreichbar. Sie sind in ca. 10 Minuten zu Fuß in der pulsierenden, historischen Altstadt.
Die Autobahnauffahrt auf die A3 ist ca. 10 Fahrminuten entfernt.
Lebensmittel- und Getränkemärkte, Bäckereien, Apotheken, Ärzte, Restaurants und Cafés finden Sie in unmittelbarer Nähe.
Provision:
Alle Angaben sind ohne Gewähr und basieren ausschließlich auf Informationen, die uns vom Auftraggeber zur Verfügung gestellt wurden. Wir übernehmen keine Gewähr für die Vollständigkeit, Richtigkeit und Aktualität dieser Angaben. Bei Ankauf dieses Objektes ist eine Maklercourtage (Käuferprovision) in Höhe von 3,57% des Kaufpreises (inkl.19% MwSt.) bei Vertragsabschluss verdient und fällig. Die Provision ist nach Unterzeichnung des Kaufvertrages umgehend fällig.
Wir freuen uns über Ihr Interesse!
Wir freuen uns über Ihr Interesse!
AGB:
Wir weisen auf unsere Allgemeinen Geschäftsbedingungen hin. Durch weitere Inanspruchnahme unserer Leistungen erklären Sie die Kenntnis und Ihr Einverständnis.
Ihr Ansprechpartner
Zurück zur Übersicht






























