Objekt 6 von 16
Nächstes Objekt
Vorheriges Objekt
Zurück zur Übersicht
Zurück zur Übersicht



Ering: ***Interessant für Anleger und Gastronome*** Renoviertes Mehrparteienhaus mit 3 Wohneinheiten, eingerichtetem Restaurant und Biergarten
Objekt-Nr.: M-BG0773K
Schnellkontakt
Optionen
Optionen
Basisinformationen
Adresse:
94140 Ering
Rottal-Inn
Bayern
Rottal-Inn
Bayern
Vermietbare Fläche ca.:
359 m²
Preis:
360.000 €
Objektart:
Wohn/Geschäftshaus
Baujahr:
1953
Weitere Informationen
Weitere Informationen
Provisionspflichtig:
ja
Provision:
Die Maklercourtage beträgt 3,57% inkl. MwSt.
Letzte Modernisierung/ Sanierung:
2018
Qualität der Ausstattung:
normal
Grundstück ca.:
472 m²
Wohnfläche ca.:
359 m²
Sonstige Fläche ca.:
60 m²
Etagenanzahl:
2
Keller:
teil unterkellert
vermietet:
ja
Möbliert:
Teilmöbliert
Bodenbelag:
Fliesen
Zustand:
gepflegt
Heizung:
Zentralheizung
Befeuerungsart:
Öl
Energieausweistyp:
Verbrauchsausweis - gültig vom 27.05.2020 bis 26.05.2030
Energieverbrauchs-Kennwert:
347 kWh/(m²*a)
Energieverb. Warmwasser enthalten:
ja
Baujahr laut Energieausweis:
1995
Beschreibung
Beschreibung
Objektbeschreibung:
GASTRONOMIEBEREICH
*Erdgeschoß
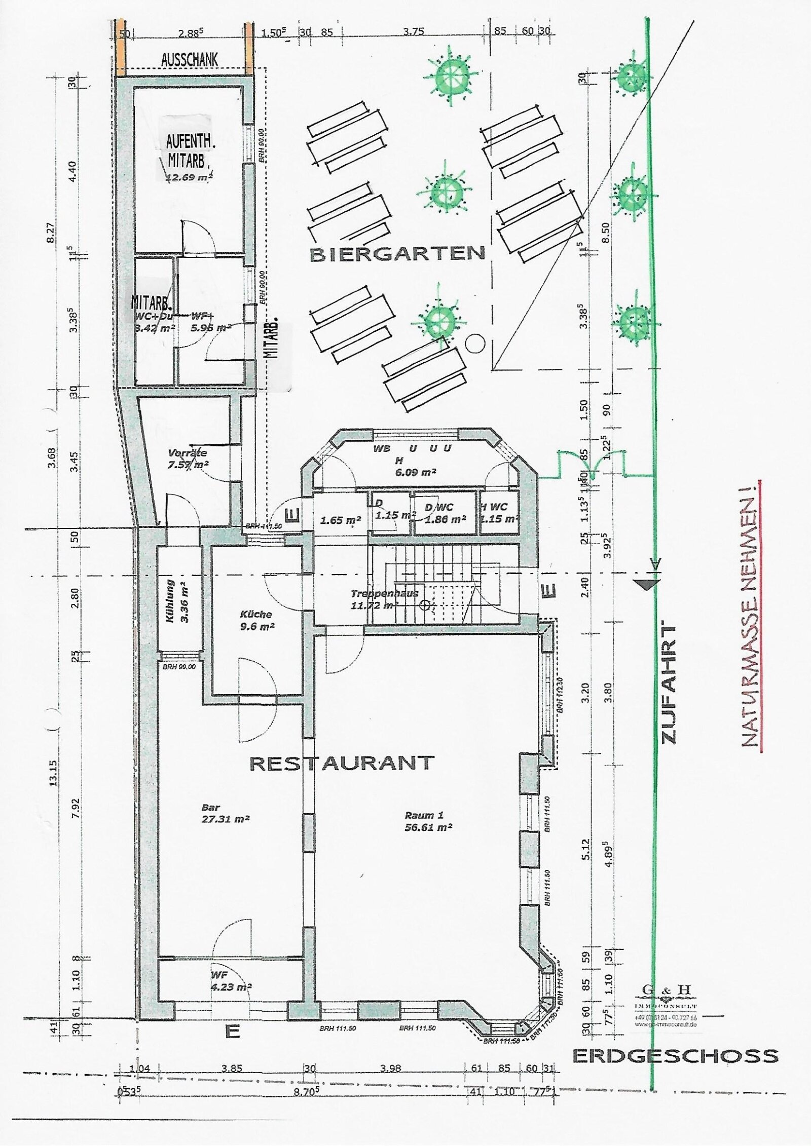
Das auf dem ca. 472m² großen Grundstück errichtete Objekt beherbergt ein eingerichtetes RESTAURANT + Nebenräume (ca. 152m²) mit Bar-Schankbereich, Küche, Kühlraum, Vorratslager, Sanitärbereich, Lüftungsanlage, gemütlicher, ruhiger bayerischer Biergarten (ca. 200m²), Mitarbeiterräume (ca. 22m²). Derzeit an eine gutgehende Pizzeria verpachtet.
*Im Kellergeschoß befindet sich die Lüftungsanlage, ein Lagerbereich, die Heizanlage und der Tankraum.
Das Restaurant hat an der Nordseite einen eigenen Lieferanten-Eingang, die Lieferzufahrt erfolgt von der Dorfstraße aus. Vor dem Restaurant und am direkt anschließenden Marktplatz gibt es ausreichend öffentliche Gäste-Parkplätze.
*Das Restaurant mit dem kleinen Appartement ist derzeit gut vermietet und bekannt als beliebter Treffpunkt für Radfahrer.
WOHNBEREICH
*Obergeschoß
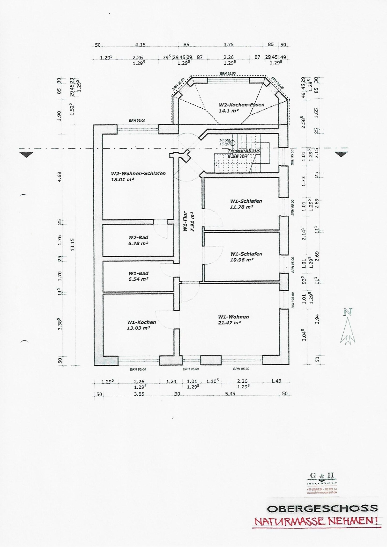
Der getrennte Wohnhaus-Eingang führt Sie über das Treppenhaus in das 1. OG. Rechts geht es in das APPARTEMENT (ca.39m²) mit Koch-Essbereich, Wohn-Schlafbereich und in ein Bad mit WC.
Der linke Eingang führt in die helle 3-ZIMMERWOHNUNG (ca. 72m²) mit Wohnraum, 2 Schlafräumen, Küche mit Essplatz und Bad mit WC.
*Dachgeschoß
Über das Treppenhaus gelangen Sie vor die Eingangstüre in die großzügige 2-ZIMMER-MANSARDEWOHNUNG (ca.74m²). Der Flur führt in das Schlafzimmer, das große Wohn-Esszimmer, in die Küche mit Essplatz in das Bad mit WC und in den Hauswirtschaftsraum (Büro).
*Die Wohnungen sind derzeit gut vermietet!
*Erdgeschoß
Das auf dem ca. 472m² großen Grundstück errichtete Objekt beherbergt ein eingerichtetes RESTAURANT + Nebenräume (ca. 152m²) mit Bar-Schankbereich, Küche, Kühlraum, Vorratslager, Sanitärbereich, Lüftungsanlage, gemütlicher, ruhiger bayerischer Biergarten (ca. 200m²), Mitarbeiterräume (ca. 22m²). Derzeit an eine gutgehende Pizzeria verpachtet.
*Im Kellergeschoß befindet sich die Lüftungsanlage, ein Lagerbereich, die Heizanlage und der Tankraum.
Das Restaurant hat an der Nordseite einen eigenen Lieferanten-Eingang, die Lieferzufahrt erfolgt von der Dorfstraße aus. Vor dem Restaurant und am direkt anschließenden Marktplatz gibt es ausreichend öffentliche Gäste-Parkplätze.
*Das Restaurant mit dem kleinen Appartement ist derzeit gut vermietet und bekannt als beliebter Treffpunkt für Radfahrer.
WOHNBEREICH
*Obergeschoß
Der getrennte Wohnhaus-Eingang führt Sie über das Treppenhaus in das 1. OG. Rechts geht es in das APPARTEMENT (ca.39m²) mit Koch-Essbereich, Wohn-Schlafbereich und in ein Bad mit WC.
Der linke Eingang führt in die helle 3-ZIMMERWOHNUNG (ca. 72m²) mit Wohnraum, 2 Schlafräumen, Küche mit Essplatz und Bad mit WC.
*Dachgeschoß
Über das Treppenhaus gelangen Sie vor die Eingangstüre in die großzügige 2-ZIMMER-MANSARDEWOHNUNG (ca.74m²). Der Flur führt in das Schlafzimmer, das große Wohn-Esszimmer, in die Küche mit Essplatz in das Bad mit WC und in den Hauswirtschaftsraum (Büro).
*Die Wohnungen sind derzeit gut vermietet!
Ausstattung:
Das Objekt wurde 2018 gänzlich renoviert.
Restaurant und Küche sind voll möbliert und eingerichtet.
Die Wohn- und Schlafräume sind mit Holz-Laminatbelag, Küchen und Bäder mit hellen Fliesen ausgestattet, die Holzfenster sind isolierverglast.
Beheizt wird das Objekt über Heizkörper, die über eine Ölfeuerung mit Wärme versorgt werden.
Restaurant und Küche sind voll möbliert und eingerichtet.
Die Wohn- und Schlafräume sind mit Holz-Laminatbelag, Küchen und Bäder mit hellen Fliesen ausgestattet, die Holzfenster sind isolierverglast.
Beheizt wird das Objekt über Heizkörper, die über eine Ölfeuerung mit Wärme versorgt werden.
Lage:
Die aufstrebende, ca. 2.000 Einwohner zählende Gemeinde Ering liegt in einem Europa-Naturreservat und Vogelschutzgebiet mitten im sanft hügeligen niederbayerischen Rottal, umgeben von grünen Wiesen und Wäldern. Kreuzungspunkt mehrerer Radwege.
Bekannt sind das Schloss Ering, das Öko-Info-Zentrum Naturium am Inn und der Wildpark Halmstein.
Die Gemeinde verfügt über ein neu renoviertes beheiztes Freibad.
Ering befindet sich unweit dem bekannten niederbayerischen Bäder- und Kurdreieck Bad Füssing/Bad Griesbach/Bad Birnbach mit den großzügig renovierten Wohlfühlthermen und einem umfangreichen Kultur-, Sport- und Unterhaltungsprogramm.
Vor Ihrer Haustüre finden Sie die attraktive Golf-Europaregion mit neun 18-Loch und drei 9-Loch Plätzen sowie ein ausgedehntes Netz von Spazier-, Wander-, Joggingwegen. Treffpunkt für Radfahrer und Ausgangspunkt der Radwege "Sempter-Isen-Radweg" und "Vilstal-Radweg".
*Versorgung
Ering hat eine gewachsene, gute Infrastruktur.
Produkte des täglichen Bedarfs erhalten Sie im fußläufig erreichbaren kleinen EDEKA-Markt und in kleinen Läden im Ortszentrum.
Die Einkaufsstadt Pocking ist ca. 19km, die Dreiflüsse-Stadt Passau mit ihrem sehenswert historischen Stadtkern, Cafés, Restaurants und Läden ist ca. 40km entfernt.
Die österreichische Festspielstadt Salzburg erreichen Sie in ca. 75km.
*Verkehrsanbindung
Ering ist an das öffentliche Busnetz bzw. an den Rufbus angeschlossen. Bahnverbindungen finden Sie ab Pocking und Passau.
Durch den laufenden Endausbau der A94 ist in absehbarer Zeit von Ering aus die Metropole München durchgehend bis Passau bequem erreichbar.
Bekannt sind das Schloss Ering, das Öko-Info-Zentrum Naturium am Inn und der Wildpark Halmstein.
Die Gemeinde verfügt über ein neu renoviertes beheiztes Freibad.
Ering befindet sich unweit dem bekannten niederbayerischen Bäder- und Kurdreieck Bad Füssing/Bad Griesbach/Bad Birnbach mit den großzügig renovierten Wohlfühlthermen und einem umfangreichen Kultur-, Sport- und Unterhaltungsprogramm.
Vor Ihrer Haustüre finden Sie die attraktive Golf-Europaregion mit neun 18-Loch und drei 9-Loch Plätzen sowie ein ausgedehntes Netz von Spazier-, Wander-, Joggingwegen. Treffpunkt für Radfahrer und Ausgangspunkt der Radwege "Sempter-Isen-Radweg" und "Vilstal-Radweg".
*Versorgung
Ering hat eine gewachsene, gute Infrastruktur.
Produkte des täglichen Bedarfs erhalten Sie im fußläufig erreichbaren kleinen EDEKA-Markt und in kleinen Läden im Ortszentrum.
Die Einkaufsstadt Pocking ist ca. 19km, die Dreiflüsse-Stadt Passau mit ihrem sehenswert historischen Stadtkern, Cafés, Restaurants und Läden ist ca. 40km entfernt.
Die österreichische Festspielstadt Salzburg erreichen Sie in ca. 75km.
*Verkehrsanbindung
Ering ist an das öffentliche Busnetz bzw. an den Rufbus angeschlossen. Bahnverbindungen finden Sie ab Pocking und Passau.
Durch den laufenden Endausbau der A94 ist in absehbarer Zeit von Ering aus die Metropole München durchgehend bis Passau bequem erreichbar.
Provision:
Alle Angaben sind ohne Gewähr und basieren ausschließlich auf Informationen, die uns vom Auftraggeber zur Verfügung gestellt wurden. Wir übernehmen keine Gewähr für die Vollständigkeit, Richtigkeit und Aktualität dieser Angaben. Bei Ankauf dieses Objektes ist eine Maklercourtage (Käuferprovision) in Höhe von 3,57% des Kaufpreises (inkl.19% MwSt.) bei Vertragsabschluss verdient und fällig. Die Provision ist nach Unterzeichnung des Kaufvertrages umgehend fällig. Das Objekt befindet sich im Alleinauftrag von G&H Immoconsult.
Wir freuen uns auf Ihr Interesse!
Wir freuen uns auf Ihr Interesse!
AGB:
Wir weisen auf unsere Allgemeinen Geschäftsbedingungen hin. Durch weitere Inanspruchnahme unserer Leistungen erklären Sie die Kenntnis und Ihr Einverständnis.
Ihr Ansprechpartner
